Filtri
Filtri
Scuole

Vendita: Capannori - Altro, Capannori; Cod.: Residence App TC

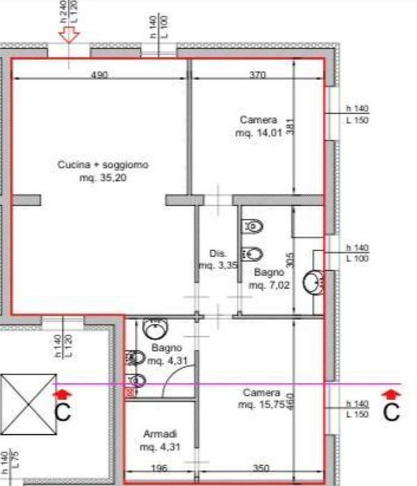
Nel cuore del comune di Capannori, situato nella provincia di Lucca, Italia, si trova questo delizioso appartamento in vendita AL PIANO TERRA ubicato nel centro del paese, gode di una posizione strategica che permette di avere a disposizione tutto ció di cui si ha bisogno a pochi passi di distanza. La proprietà è un'opportunità imperdibile per chi è alla ricerca di una soluzione abitativa comoda e NUOVA. Le scuole, i negozi, la farmacia e altre comodità sono tutte raggiungibili a piedi, garantendo la massima praticità nella vita di tutti i giorni. L'appartamento si estende su una superficie di 85 metri quadrati utili, suddivisi in vani spaziosi e così composto: ingresso, grande salone con cucina, due bagni e due camere matrimoniali e stanza armadi. .L'ampio spazio abitativo offre molte possibilità di personalizzazione secondo i propri gusti e esigenze. Inoltre, la proprietà vanta un ripostiglio di 8mq. esterno, e due posti auto che assicura un comodo parcheggio per il proprio veicolo. L'appartamento è dotato di riscaldamento a pavimento, che garantisce un ambiente caldo e confortevole durante i mesi più freddi. Inoltre, è presente un impianto fotovoltaico, che permette di ridurre i costi energetici e di essere più ecologici nell'utilizzo della propria abitazione. Gli infissi in PVC e le persiane assicurano un'ottima isolamento termico e acustico, garantendo un ambiente tranquillo e riposante. Inoltre, gli ingressi indipendenti permettono di godere di privacy e autonomia nella gestione della propria casa. La classe energetica è di tipo A4, il che significa che l'appartamento è altamente efficiente dal punto di vista energetico, garantendo un risparmio significativo sulle bollette e un impatto ambientale ridotto. In sintesi, questo appartamento in vendita nel comune di Capannori rappresenta una soluzione ideale per chi cerca una casa nel cuore del paese, con tutte le comodità a portata di mano. Essendo in fase di ultimazione è possibile ancora scegliere pavimentazioni ecc. A corredo per ogni appartamento una cantina e due posti auto. Non lasciarti sfuggire questa opportunità unica! CLASSE ENERGETICA: 20 kWh/m3 a