Filtri
Filtri
Scuole

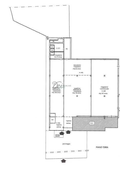
Vendita: Capannori - Fondo ad uso commerciale ; Cod.: fo se 390

Nelle immediate vicinanze del Viale Europa, fondo ad uso commerciale al piano terra di circa 560 mq utili e corredato da ampio piazzale ad uso espositivo e per posti auto. Le attuali divisioni interne sono realizzate in cartongesso e per questo è possibile modificare la distribuzione interna degli spazi. Possibilità di acquistare anche solo una porzione del fondo o di affitto. Prezzo trattabile. PER VEDERE LE NOSTRE OFFERTE AGGIORNATE IN TEMPO REALE VISITATE IL NOSTRO SITO INTERNET: www.deimmobiliare.com SEGUICI ANCHE SULLA NOSTRA PAGINA FACEBOOK Dei Immobiliare D E I I M M O B I L I A R E - Via Delle Pianacce 3 Camigliano (LU) TEL UFFICIO: 0583.920498 CELL. 329.3166782 - EMAIL: studioimdei@gmail.com SELEZIONIAMO CON CURA GLI IMMOBILI PIU' INTERESSANTI, NELLE VARIE ZONE DELLA PROVINCIA DI LUCCA. NON ESITATE A CONTATTARCI PER RICHIESTE E INFORMAZIONI AGGIUNTIVE. CLASSE ENERGETICA: G 295,36 kWh/m3 a