Filtri
Filtri
Scuole

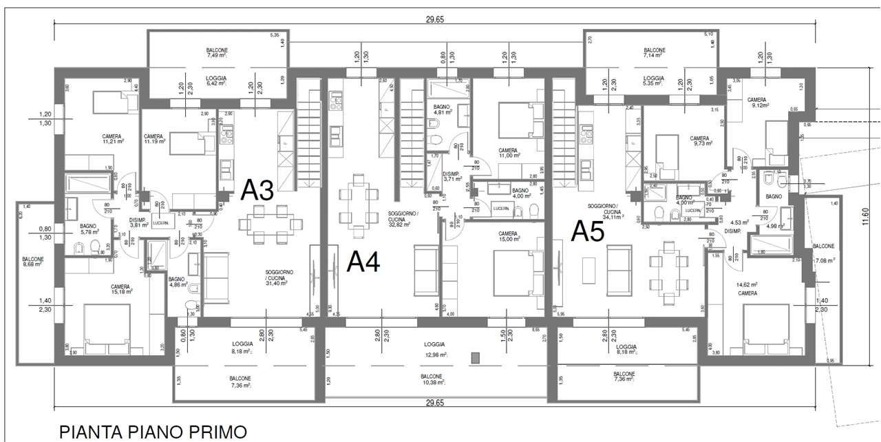
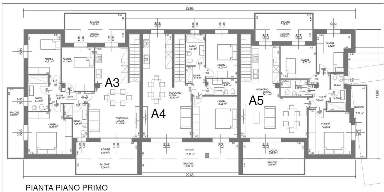
Vendita: Forlì - Appartamenti di nuovi in classe A con giardino; Cod.: 1283-3

Zona San Martino in Strada: rif. 1283-3 In moderno complesso residenziale di sole 5 unità abitative, con un elevato standard tecnologico e urbanistico, efficienza energetica, efficienza acustica, comfort ambientale e benessere. Consegna per Ottobre 2022 Proponiamo in vendita un appartamento con ingresso indipendente, posto al primo piano e formato da: area verde ad uso esclusivo e ampio ingresso al piano terra con scala che conduce al piano superiore dove troviamo una zona giorno di oltre 31 mq, disimpegno, camera da letto matrimoniale, 2 ampie camere singole, 2 bagni finestrati con box doccia, 1 balcone e 2 ampi terrazzi. Completa la proprietà un garage di oltre 16 mq. Riscaldamento centralizzato con conta-calorie a pavimento, infissi in PVC con doppio vetro, predisposizione per l'aria condizionata e per l'impianto di allarme, pannello solare e fotovoltaico, termo cappotto. 349.000 EURO Le presenti informazioni non costituiscono elemento contrattuale. CLASSE ENERGETICA: A