Filtri
Filtri
Scuole

Vendita: Capannori - Uffici, Capannori; Cod.: capann camigliano

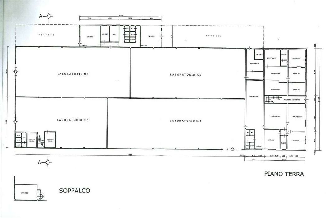
Capannone artigianale, per un totale di 1231 mq e altezza m.5.00, suddiviso in quattro vani ad uso laboratorio con servizi e uffici per un totale di 230 mq. Corredato da due appartamenti al primo piano composti da ingressi indipendenti, soggiorno, cucina abitabile, tre camere e bagno, tensostrutture e due tettoie. Il capannone è in buono stato di manutenzione. Ci contatti per sapere il prezzo richiesto. sist3ma.it@gmail.com CLASSE ENERGETICA: G 290 kWh/m2 a